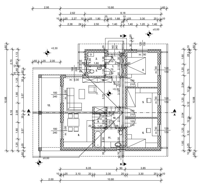
BBFC26692 családi ház nettó: 88,27 m²
Figyelem!
Alaprajzaink kiindulási pontként is szolgálnak!
Bővíthetők, csökkenthetők, áttrendezhetők.
Áttervezhetőek az adott helyszín építési szabályait figyelembe véve.
Kiindulási alapnak számíthatnak egy egyedi elképzeléshez is!
Helyiséglista:
Szélfogó 4,43 m2
Kazánház 2,48 m2
WC 1,8 m2
Hálószoba 12,21 m2
Szélfogó kerámia 6,15 m2
Szoba 10,40 m2
Szoba 10,40 m2
Nappali 20,60 m2
Étkező – konyha 13,52 m2
Kamra 1,83 m2
Előtér 4,20 m2
Fürdőszoba 6,40 m2
Összesen: 88,27 m2 nettó lakóterület






