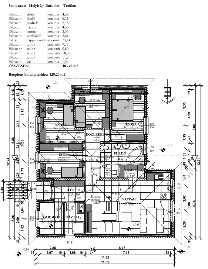
ODKZS34291 családi ház nettó: 103,4 m²
Figyelem!
Alaprajzaink kiindulási pontként is szolgálnak!
Bővíthetők, csökkenthetők, áttrendezhetők.
Áttervezhetőek az adott helyszín építési szabályait figyelembe véve.
Kiindulási alapnak számíthatnak egy egyedi elképzeléshez is!




