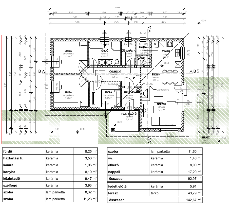
RNFAJU943 családi ház nettó: 92,97 m²
Figyelem!
Alaprajzaink kiindulási pontként is szolgálnak!
Bővíthetők, csökkenthetők, áttrendezhetők.
Áttervezhetőek az adott helyszín építési szabályait figyelembe véve.
Kiindulási alapnak számíthatnak egy egyedi elképzeléshez is!





