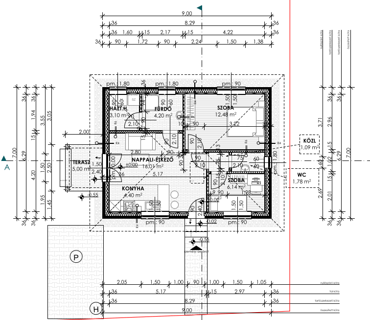
DNUFU2323 családi ház nettó: 49,2 m²
Figyelem!
Alaprajzaink kiindulási pontként is szolgálnak!
Bővíthetők, csökkenthetők, áttrendezhetők.
Áttervezhetőek az adott helyszín építési szabályait figyelembe véve.
Kiindulási alapnak számíthatnak egy egyedi elképzeléshez is!
Helyiséglista:
Nappali+étkező kerámia 16,01 m2
Konyha kerámia 4,4 m2
Fürdő kerámia 4,2 m2
Házt.h. kerámia 3,1 m2
Szoba lam.park. 12,48 m2
Közlekedő kerámia 1,09 m2
WC kerámia 1,78 m2
Szoba lam.park. 6,14 m2
Összesen: 49,2 m2



