NCGYSZ1772 családi ház nettó: 91,65 m²
NCGYSZ1772 családiház alaprajz
Figyelem!
Alaprajzaink kiindulási pontként is szolgálnak!
Bővíthetők, csökkenthetők, áttrendezhetők.
Áttervezhetőek az adott helyszín építési szabályait figyelembe véve.
Kiindulási alapnak számíthatnak egy egyedi elképzeléshez is!
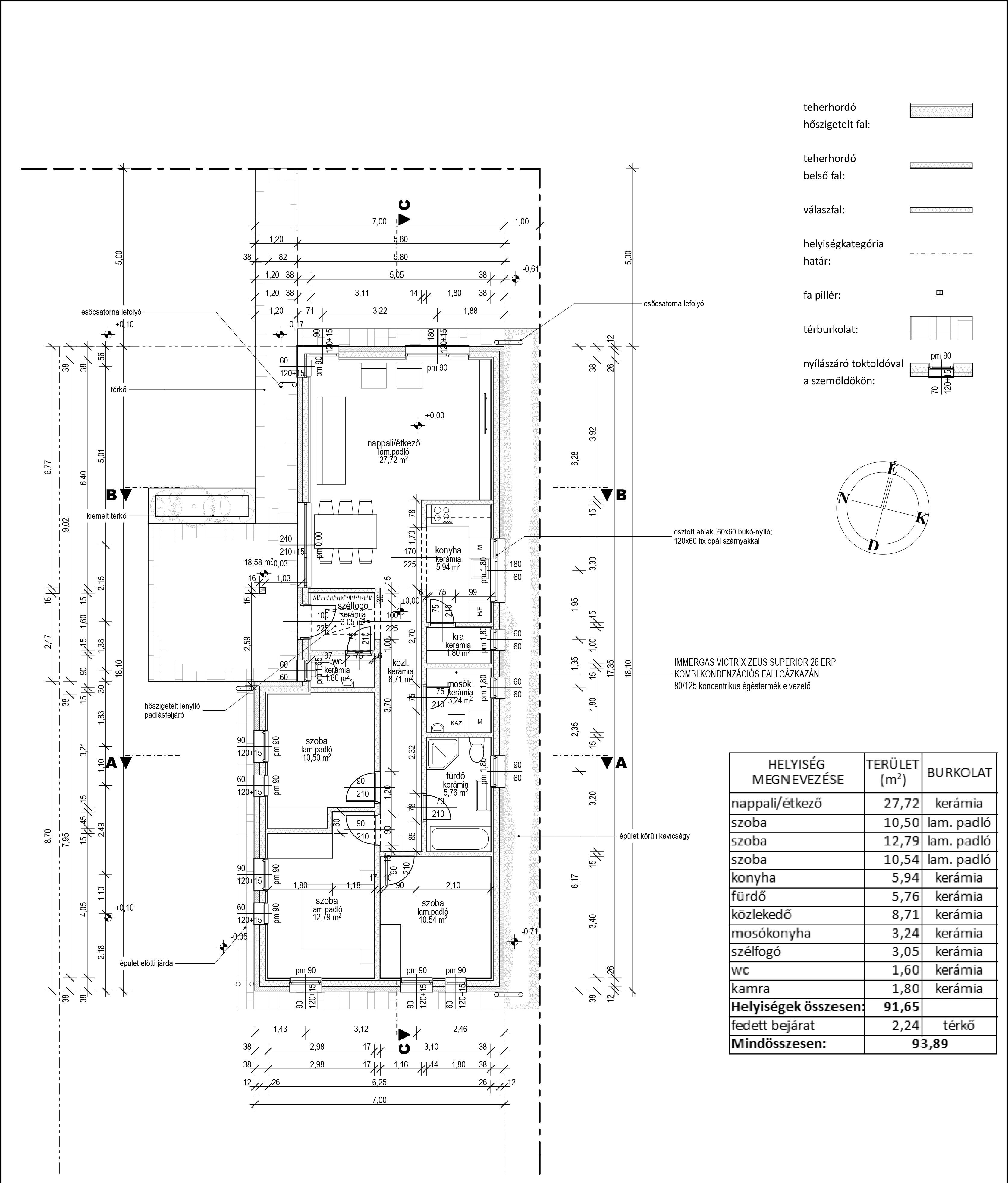
Helyiséglista:
Nappali/Étkező: 27,72 m².
Szoba: 10,50 m².
Szoba: 12,79 m².
Szoba: 10,54 m².
Konyha: 5,94 m².
Fürdő: 5,76 m².
Közlekedő: 8,71 m².
Mosókonyha: 3,24 m².
Szélfogó: 3,05 m².
WC: 1,60 m².
Kamra: 1,80 m².
Helyiségek nettó alapterülete: 91,65 m².
Fedett bejárat: 2,24 m².
Épület bruttó alapterülete: 115,876 m².



