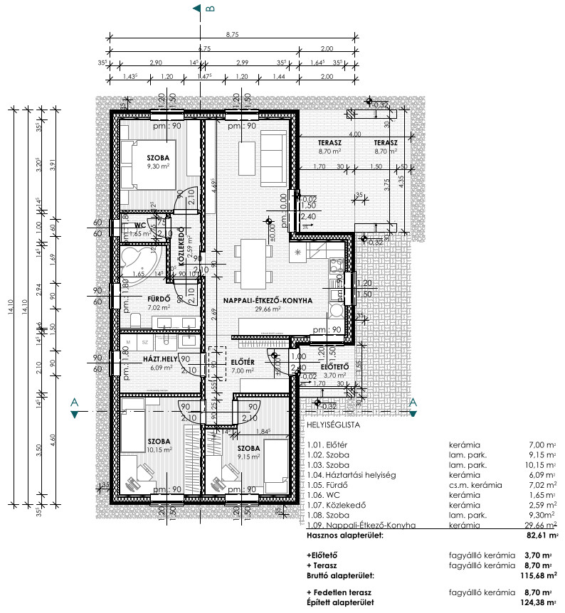
Kép 83 m2 nettó MZTFU750 alaprajz Népszerű
Tulajdonos: HD Házak & SZ-M Projekt 442 letöltés
Letöltés
(jpg, 168 KB)
83 m2 nettó MZTFU750 alaprajz.jpg
